Sundbyvägen 26, Strängnäs

✨ Ljus 2:a med balkong ✨

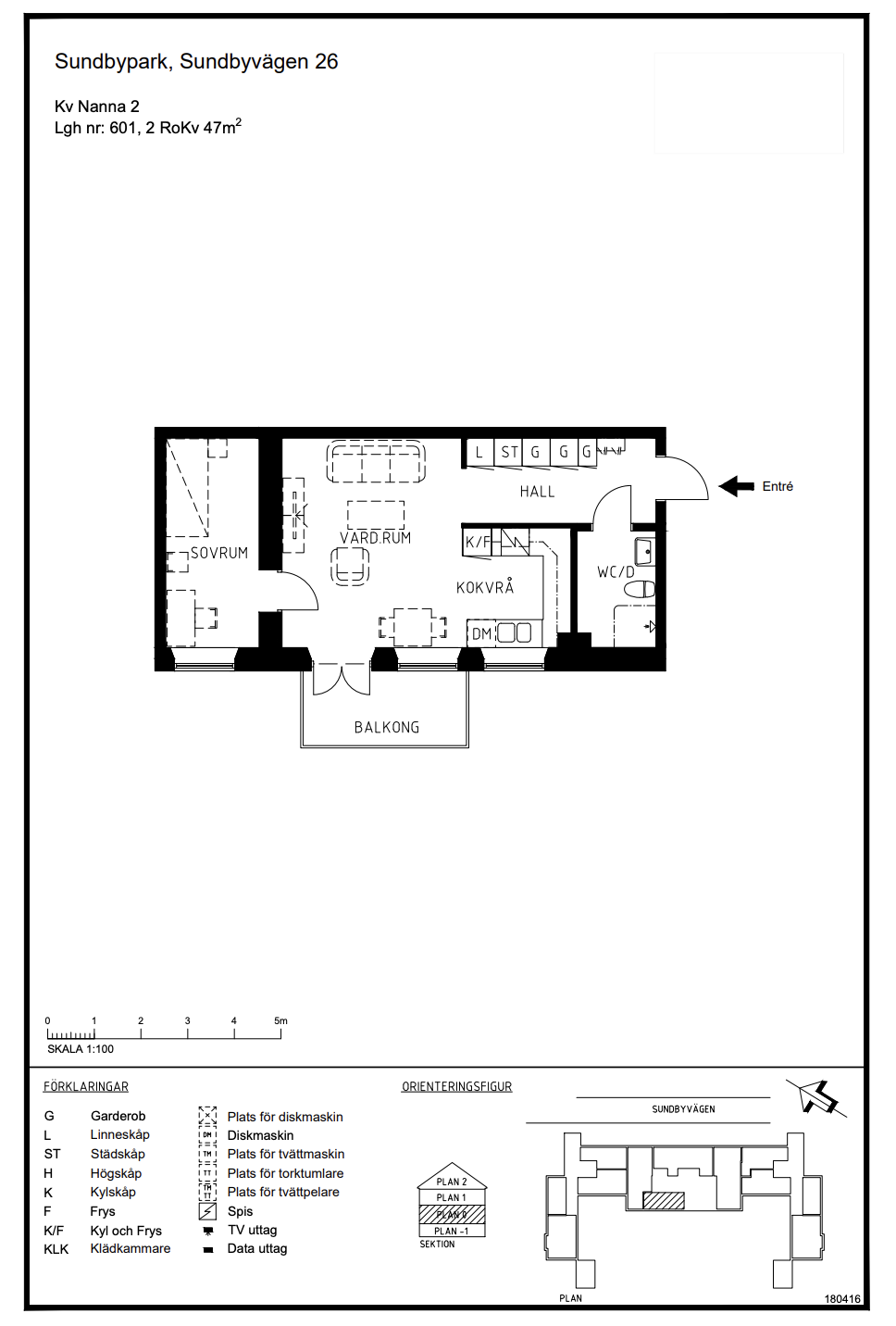
Välplanerad tvåa om 47 kvm på Sundbyvägen 26. Lägenheten är belägen på bottenplan och har en genomtänkt planlösning med separat sovrum, öppen planlösning mellan vardagsrum och kök. Från vardagsrummet nås den generösa balkongen, som vetter mot innergården och ger extra yta under årets varmare månader.

Bostaden har genomgående parkettgolv och ljusa ytskikt. Köket är utrustat med kyl/frys, diskmaskin, glashäll och ugn. Badrummet är helkaklat.. Lägenheten är ansluten till stadsnät för tv, internet och telefoni samt har tillgång till ett externt förråd.

Fastigheten uppfördes 1922 och totalrenoverades 2018 då det varsamt omvandlades från kontor till moderna bostäder. Resultatet är en byggnad som förenar klassisk arkitektur med nutida komfort – genomtänkta planlösningar, fräscha ytskikt och en känsla av kvalitet. Bilparkering finns att hyra. Cykelförvaring erbjuds både i låst bod på gården och i källaren. Gemensam tvättstuga ligger bekvämt på entréplanet. För sociala stunder och avkoppling finns en trivsam gemensam uteplats med picknickbord och grill – både under tak och i det fria.

  • Lgh 601, 2 rok, 47 kvm

  • Hyra 8921 :-/mån

  • Tillgänglig från 1:a juni 2026

Är du intresserad, skicka en anmälan genom klicka på länken nedan så kontaktar vi er.

Föregående
Föregående

Sundbyvägen 24, Strängnäs

Nästa
Nästa

Sundbyvägen 26, Strängnäs