Sundbyvägen 26, Strängnäs

✨ Ljus 2:a med balkong ✨

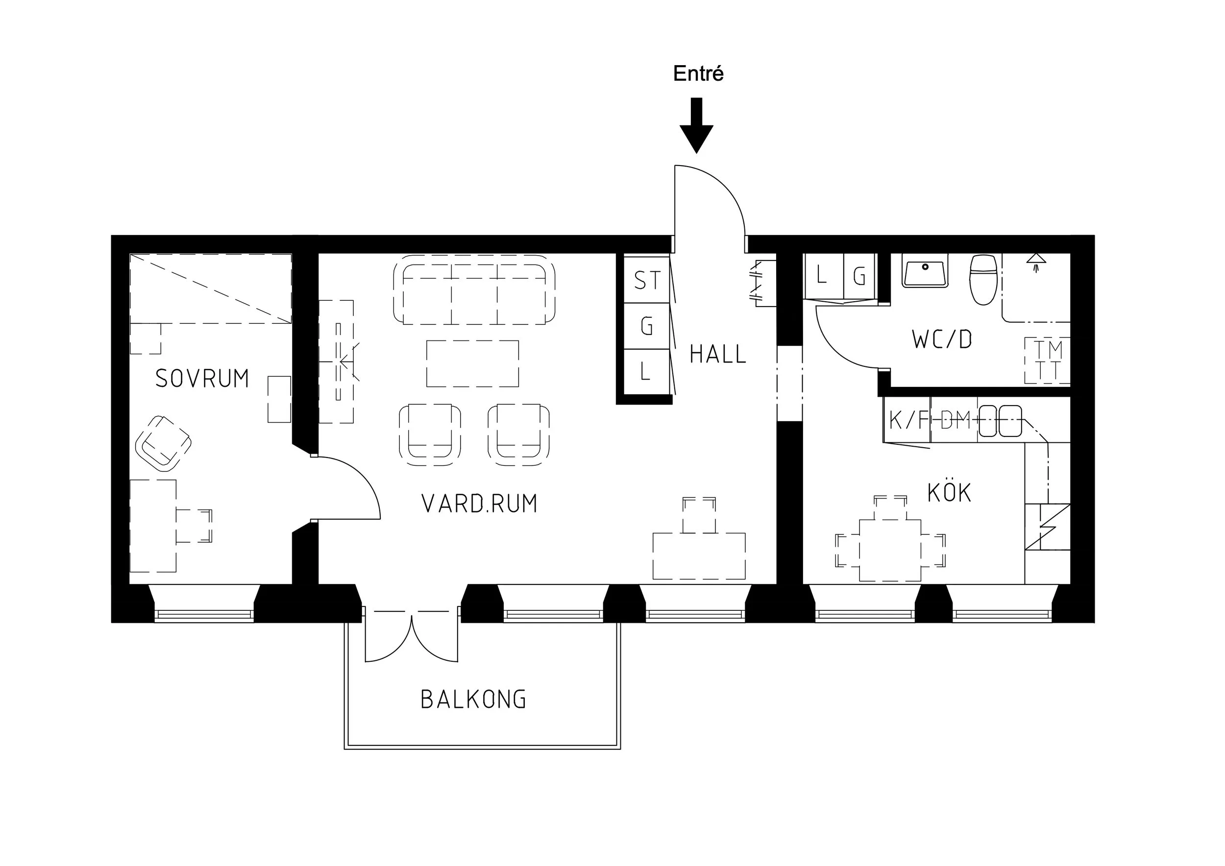
Välplanerad tvåa om 53 kvm på Sundbyvägen 26. Lägenheten är belägen på våning 1 och har en genomtänkt planlösning med separat sovrum, rymligt vardagsrum och kök med matplats. Från vardagsrummet nås den generösa balkongen, som vetter mot innergården och ger extra yta under årets varmare månader.

Bostaden har genomgående parkettgolv och ljusa ytskikt. Köket är utrustat med kyl/frys, diskmaskin, glashäll och ugn. Badrummet är helkaklat och förberett för tvättmaskin. Lägenheten är ansluten till stadsnät för tv, internet och telefoni samt har tillgång till ett externt förråd.

Fastigheten uppfördes 1922 och totalrenoverades 2018 då det varsamt omvandlades från kontor till moderna bostäder. Resultatet är en byggnad som förenar klassisk arkitektur med nutida komfort – genomtänkta planlösningar, fräscha ytskikt och en känsla av kvalitet. Bilparkering finns att hyra. Cykelförvaring erbjuds både i låst bod på gården och i källaren. Gemensam tvättstuga ligger bekvämt på entréplanet. För sociala stunder och avkoppling finns en trivsam gemensam uteplats med picknickbord och grill – både under tak och i det fria.

  • Lgh 611, 2 rok, 53 kvm

  • Hyra 10 388 :-/mån

  • Tillgänglig från 1:a maj 2026

Är du intresserad, skicka en anmälan genom klicka på länken nedan så kontaktar vi er.

Föregående
Föregående

Sundbyvägen 24, Strängnäs

Nästa
Nästa

Sundbyvägen 26, Strängnäs